About
Acquisitions
Hotels
Featured Projects
Giving Back
Leasing
Investors
Contact
Back
Development
Current Assets
About
Acquisitions
Hotels
Featured Projects
Development
Current Assets
Giving Back
Leasing
Investors
Contact
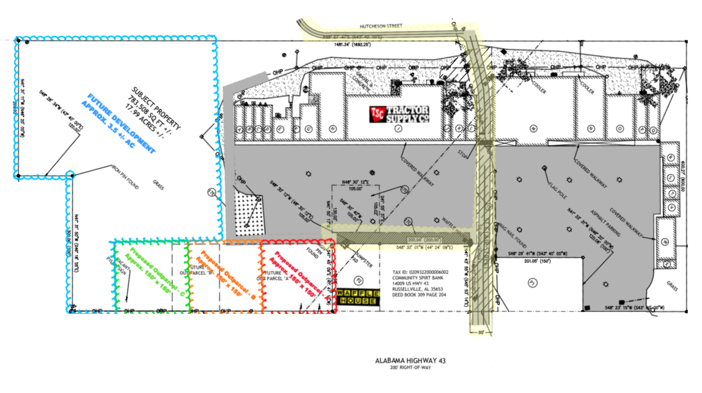
Franklin Center - Russellville, AL
Download PDF